813 mq
5
A Valeggio sul Mincio, in splendida posizione collinare panoramica con vista aperta sui vigneti e immerso tra gli ulivi, proponiamo in vendita un affascinante immobile storico attualmente adibito a ristorante e pizzeria, con annesse abitazioni al piano primo. Situata a pochi chilometri dal Lago di Garda, la proprietà si sviluppa su tre livelli ed è perfetta per chi desidera avviare o potenziare un'attività di ristorazione e ospitalità in un contesto unico nel suo genere.
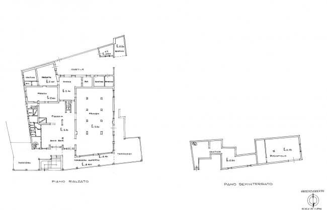
Al piano terra si trova il ristorante, caratterizzato da ambienti spaziosi e curati: un'ampia sala open space con zona bar, una grande sala da pranzo, un forno a legna per pizzeria, una cucina professionale completamente attrezzata, una saletta più riservata ideale per cene intime, servizi igienici per i clienti, locali deposito e stoccaggio merce, terrazze e verande esterne perfette per la bella stagione, tutte con vista sulle colline. L'intero ambiente è climatizzato e pensato per offrire comfort e funzionalità.
Al piano seminterrato troviamo una cantina, una taverna e un magazzino, oltre a un cortile esterno posto sul retro della cucina e un rustico utilizzato come deposito attrezzi.
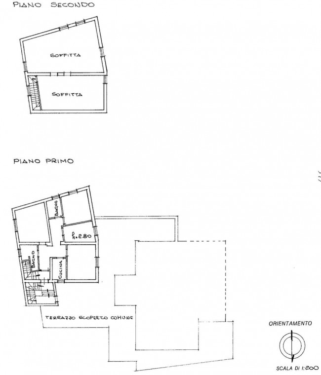
Il piano primo ospita due grandi appartamenti con ingresso interno, ideali come abitazione per gestori o personale. Il primo è composto da cucina, quattro camere da letto e due bagni; il secondo da cucina, tre camere da letto e due bagni. Al piano secondo completano la proprietà due locali soffitta, perfetti come deposito o da riorganizzare secondo necessità.
Un ampio parcheggio privato garantisce massima comodità per la clientela e rende l'immobile ancora più funzionale. La posizione, l'ampiezza degli spazi, la vista e la presenza delle unità abitative rendono questa proposta un'opportunità rara e completa per chi cerca un'attività avviabile da subito in un contesto di grande fascino e tranquillità, a due passi dal Lago di Garda.
Contattaci senza impegno per ottenere maggiori informazioni e per prenotare una visita della proprietà a Valeggio sul Mincio.
Possibilità di mutuo a condizioni agevolate. La nostra consulenza ti consente di individuare il prodotto più adatto alle condizioni economiche più vantaggiose.
Contattateci o scriveteci per una consulenza gratuita.

813 mq
5