162 mq
3
2
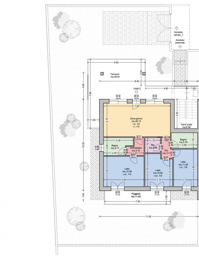
In nuova zona residenziale in sviluppo a Castelnuovo del Garda, proponiamo quadrilocale al piano primo con ampio terrazzo coperto, in un elegante complesso di sole tre unità.
L'abitazione, progettato per garantire privacy, comfort e qualità costruttiva si sviluppa su un unico livello, l'interno si apre su una luminosa zona giorno open space dal design ricercato, ideale per vivere la quotidianità con stile e accogliere gli ospiti in un ambiente accogliente e contemporaneo e tramite le vetrate si accede al terrazzo di 40 mq perfetto per momenti di relax e convivialità; la zona notte comprende camera matrimoniale, camera doppia e camera singola oltre a due bagni e ad un comodo ripostiglio.
La proprietà comprende inoltre un garage e un posto auto scoperto di proprietà.
Dal punto di vista impiantistico, l'immobile sarà dotato di riscaldamento autonomo a pavimento alimentato da pompa di calore, con impianto fotovoltaico dedicato per la produzione di energia elettrica, a conferma dell'attenzione verso l'efficienza energetica e la sostenibilità ambientale.
Questa soluzione rappresenta un'opportunità ideale per chi cerca una casa nuova, funzionale e ben rifinita, in una zona residenziale in espansione, perfetta sia come abitazione principale che come investimento immobiliare.
Vi invitiamo a contattarci senza alcun impegno per ottenere ulteriori informazioni o per prenotare una visita in questo appartamento a Castelnuovo del Garda.
Inoltre, offriamo la possibilità di accedere a mutui a condizioni agevolate, per facilitare l'acquisto della vostra nuova casa.
La nostra consulenza vi aiuterà a individuare il prodotto finanziario più adatto alle vostre esigenze, garantendovi le condizioni economiche più vantaggiose. Non esitate a contattarci o a scriverci per una consulenza gratuita.

162 mq
3
2