105 mq
2
1
Castelnuovo del Garda, in posizione strategica al confine con Peschiera del Garda e inserito in una zona panoramica particolarmente comoda al lago e a tutti i principali servizi, proponiamo un elegante trilocale al piano terra, libero su tre lati con ampio giardino esclusivo.
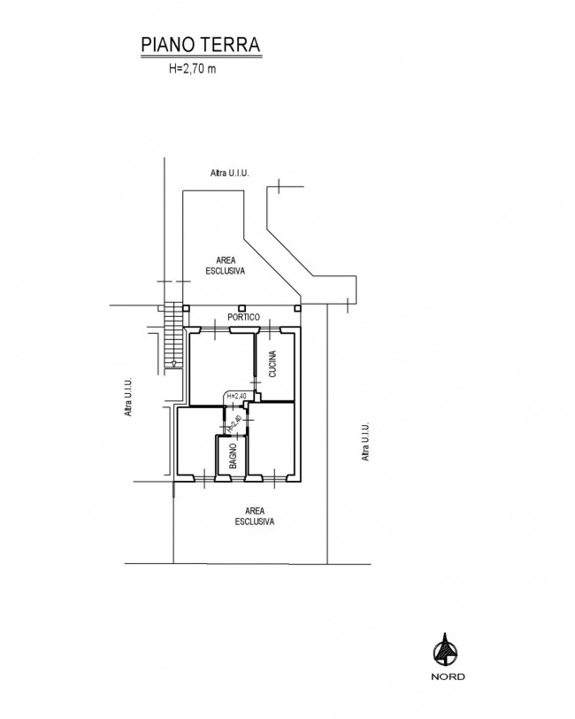
L'immobile si trova all'interno del rinomato residence con piscina "Quadrivium", ed è così composto: ingresso indipendente che conduce al portico coperto, zona giorno composta da un luminoso soggiorno e da una cucina separata. La zona notte è ben distribuita grazie a un comodo disimpegno che accompagna al bagno finestrato e alle due camere matrimoniali, entrambe dotate di accesso diretto al plateatico coperto, ideale per momenti di relax all'aperto.
Su richiesta è disponibile l'acquisto di un'autorimessa singola situata al piano interrato, utile per completare la proprietà con un comodo spazio dedicato al parcheggio o allo stoccaggio.
L'appartamento si distingue per le sue finiture curate e per una serie di dotazioni che ne aumentano comfort e funzionalità. Tra queste spiccano la pergola Gibus con tetto apribile e illuminazione a led, il boiler elettrico da 80 litri a basso consumo, protetto da un armadio in ferro e legno realizzato su misura. L'immobile è inoltre dotato di riscaldamento centralizzato a pavimento, aria condizionata, impianto di irrigazione automatico e indipendente, piantumazioni su tutti i lati, prato sintetico e un plateatico retrostante rifinito con piastre galleggianti in gres porcellanato lavabile.
La proprietà viene venduta parzialmente arredata.
Questa proposta rappresenta un'ottima opportunità sia come prima casa sia come residenza per le vacanze o investimento turistico, grazie alla vicinanza al lago e ai celebri parchi divertimento della zona, tra cui Gardaland, Movieland e Caneva. Il contesto è ben servito da negozi, ristoranti, scuole e infrastrutture, mentre la presenza di piste ciclabili e percorsi pedonali consente di esplorare comodamente i dintorni e godere appieno del territorio.
Potete contattarci senza impegno per ottenere maggiori informazioni o per prenotare una visita per questo appartamento a Castelnuovo del Garda.
Possibilità di mutuo a condizioni agevolate.
La nostra consulenza ti consente di individuare il prodotto più adatto alle condizioni economiche più vantaggiose. Contattateci o scriveteci per una consulenza gratuita.

105 mq
2
1