263 sq.m
3
2
In Peschiera del Garda, in the hamlet of San Benedetto di Lugana and just 500 metres from the lake, we offer a new and bright penthouse on the third floor with a panoramic terrace on the upper floor.
The property is located in a modern and elegant residence comprising ten residential units, served by an elevator. The basement features large garages for each unit.
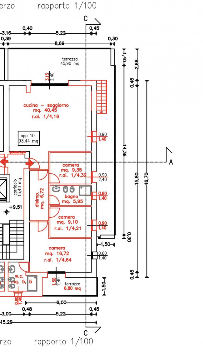
The apartment is spread over two levels, the third floor having a terrace on the upper level, and is also easily accessible by elevator. The entrance leads to the bright living area with an open-plan kitchen and living room, both overlooking the large, approximately 45 square meter terrace that extends on two sides. The sleeping area includes a hallway, two single bedrooms, a bathroom with window, and a master bedroom with a private bathroom and private terrace.
On the upper floor, accessed by an external staircase on the terrace, you reach the panoramic terrace overlooking the lake, embellished with an elegant brick jacuzzi, outdoor shower, utility room and provisions for an outdoor kitchen.
The property also includes a double garage in the basement. A cellar can also be purchased separately for €6,000.
The entire project was constructed using cutting-edge construction technologies, designed to ensure high standards of comfort, energy efficiency, and thermal and acoustic insulation. The finishes were carefully selected: wooden exterior windows, a security door, and an independent heating and cooling system powered by a heat pump. Underfloor heating is present in every room, including the bathrooms, where a heated towel rail has also been installed.
The apartments are equipped with controlled mechanical ventilation to ensure constant air exchange, in addition to air conditioning. Each unit has a dedicated photovoltaic system, compliant with current regulations, and a modern video intercom. An alarm system is also available.
This new complex represents a contemporary, efficient, and comfortable housing solution, ideal for those who want to live near the lake in a well-kept, high-quality setting.
Ready for delivery!
Please contact us without obligation for more information or to schedule a viewing of this new apartment in Peschiera del Garda, a hamlet of San Benedetto di Lugana.
Affordable mortgage options available. Our advice will help you find the best product at the most advantageous rates. Contact us or email us for a free consultation.

263 sq.m
3
2