155 sq.m
3
2
WHERE DESIGN MEETS INNOVATION: YOUR NEW CUSTOM VILLA
Imagine opening your eyes every morning in a home where comfort meets elegance, where every detail has been designed to offer you well-being and freedom.
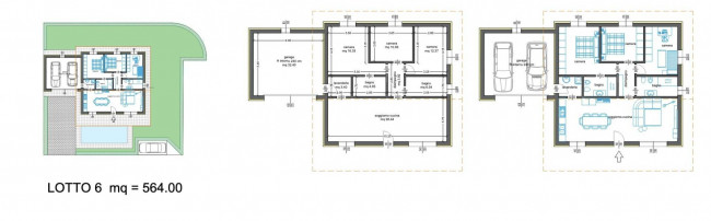
An independent villa in Ponti sul Mincio, bathed in light, capable of producing more energy than it consumes, giving you not only a cutting-edge home, but also a sustainable choice for the future.
A garden that becomes your refuge, enveloping you with its large and harmonious spaces. Here, you can choose to build an infinity pool, transforming every moment outdoors into an experience to be lived.
The interiors welcome you with a large open-space living area, dominated by large windows overlooking the garden, giving you a feeling of continuity with the outside.
The sleeping area is an oasis of tranquility where the three bedrooms develop, including a master bedroom with private bathroom and a second bathroom that completes the comfort of your new home.
Each space is designed to fit your lifestyle, completely customizable.
The property is completed by a double garage that can accommodate two cars of any size.
Every detail is designed to offer you uncompromising practicality.
If you want a turnkey experience, you can choose complete furnishings, for interiors and exteriors, that enhance each environment with taste and refinement.
This is not just a house. It is the place where your life takes shape. Are you ready to live it?
Furthermore, we offer the possibility of accessing mortgages at favorable conditions.
Our personalized consultancy allows you to identify the financial product best suited to your needs, guaranteeing advantageous economic conditions.

155 sq.m
3
2